Kevco Builders
Home
About Us
Community Involvement
Our Communities
Floor Plans
Floor Plans
The Estate Series
The Luxury Series
Projects
Contact Us
Home
About Us
Community Involvement
Our Communities
Floor Plans
Floor Plans
The Estate Series
The Luxury Series
Projects
Contact Us
Privacy
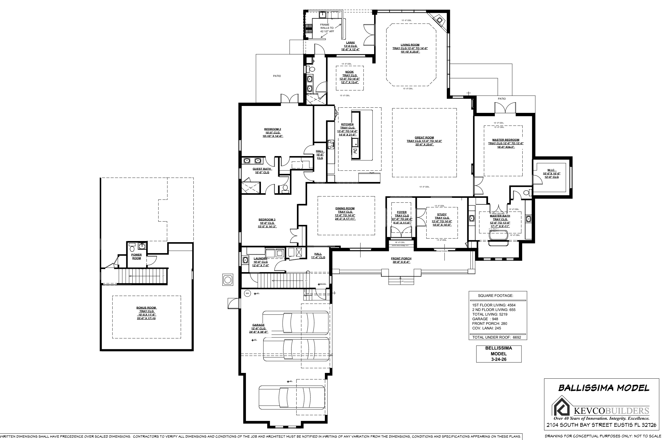
Luxury Series
Bellissima
6,692 Total
SqFt
5,219 Living
SqFt
3 Bed
3.5 Bath
Award-Winning Plan
Bellissima Features
Minimum 12 foot ceilings in main rooms & 10 foot ceilings in secondary.
Tray ceilings with beam details
(Per Plan)
7 ¼” baseboard throughout home
Two-piece crown molding at all 12 foot ceiling areas.
3 ¼” door casing on all doors
8 foot Solid Core passage doors
Tile, Wood or Luxury HD vinyl in the entire home.
Spa-Like Master Baths
Security, Low Voltage and Sound Package Allowance Increased Lighting Allowance
Fireplace Allowance
Additional Stone and Stucco Finishes
16 Foot Wide Paver Driveways with 30 Foot of turning areas
Oversize 3 Car Garage
Upgraded Insulated Garage Door(s)
Paver or Epoxy Lanai Finish
Upgraded Landscape Allowance
Summer Kitchen Allowance
Efficiency
PGT Low E Windows and 10 Foot Sliding Glass Doors
Higher Seer HVAC System withAutomation
Spray Foam Insulation
Tailored Foam Insulation in Walls
Luxury Finishes
Solid wood cabinetry with dovetail drawers, soft close/slow close hardware
High End appliance allowance
Quartz countertops
Built to Last
Concrete Masonry Construction
Engineered Monolithic Slab
Engineered Roof Truss Systems
Name
Phone #
Email
Message
I already own land
Yes
No
No, I would like Kevco to assist with purchasing land.
Get More Info
Learn More About Bellissima